3-Zimmer Wohnung mit Balkon inkl. Carport in St. Stefan im Rosental
8083 St. Stefan im Rosental, Wohnung zur Miete
Kontaktdaten
- NameFrau Jana Berger
- FirmaSiedlungsgenossenschaft Rottenmann
- Telefon
Objektdaten
- Objekt-ID40822
- ObjekttypWohnung
- Adresse8083 St. Stefan im Rosental
- Wohnfläche ca.71,26 m²
- Nutzfläche ca.71,26 m²
- Zimmer3
- Wohn-Schlafzimmer3
- Badezimmer1
- Separate WC1
- Balkone1
- MieterprovisionNein
- KautionFinanzierungsbeitrag € 1.967,03
- Warmmiete741,31 EUR
Ausstattung / Merkmale
- ✓ Balkon
- ✓ Separates WC
Objektbeschreibung
Beschreibung
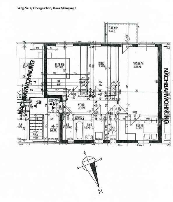
Unsere Genossenschaft vermietet in St. Stefan im Rosental, Teichweg 4, die geförderte Mietwohnung Nr. 4, inkl. überdachtem Autoabstellplatz.. Die Kosten für den Autoabstellplatz sind im Preis bereits inkludiert, ebenso die Heiz- Betriebs- u. Verwaltungskostenvorauszahlung. Die Wohnung befindet sich im 1. Obergeschoß und verfügt über einen Balkon. Das Wohnhaus ist mit einer PV-Anlage ausgestattet.
Bei Interesse stehen wir Ihnen gerne zur Verfügunng!
Sonstiges
Wohnung + AP überdacht
Lage
8083 St. Stefan im Rosental, Österreich (auf Google Maps ansehen)



