große geförderte Mietwohnung in Trieben mit Carport
8784 Trieben, Wohnung zur Miete
Kontaktdaten

- NameFrau Claudia Gruber
- FirmaSiedlungsgenossenschaft Rottenmann
- Telefon
Objektdaten
- Objekt-ID50055
- ObjekttypWohnung
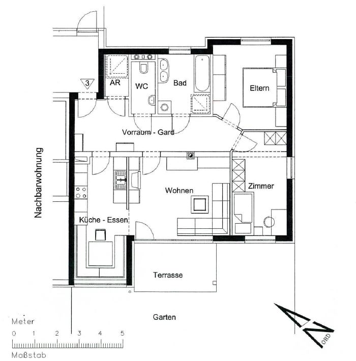
- Adresse8784 Trieben
- Wohnfläche ca.79,47 m²
- Nutzfläche ca.79,47 m²
- Wohn-Schlafzimmer3
- Badezimmer1
- Separate WC1
- Terrassen1
- MieterprovisionNein
- Kautioneinmaliger Finanzierungsbeitrag in Höhe von ca. € 4.489,00
- Warmmiete759,16 EUR
Ausstattung / Merkmale
- ✓ Separates WC
- ✓ Terrasse
Objektbeschreibung
Beschreibung
Unsere Genossenschaft vermietet in Trieben Herwerthnerstraße 14, die geförderte Mietwohnung Nr. 3. Diese befindet sich im Erdgeschoss. Ebenfalls ist der Wohnung ein Carport zugeteilt, die Kosten hierfür sind im Preis bereits inkludiert. Gerne steht Ihnen unsere Wohnungsberaterin Frau Claudia Gruber(03614/2445–978) für Details zur Verfügung!
Sonstiges
Wohnung
Lage
8784 Trieben, Österreich (auf Google Maps ansehen)



