ERSTBEZUG – moderne, geförderte Mietwohnung mit Balkon in Stainz zu vermieten
8510 Stainz, Wohnung zur Miete
Kontaktdaten

- NameFrau Daniela Hell
- FirmaSiedlungsgenossenschaft Rottenmann
- Telefon
Objektdaten
- Objekt-ID90379
- ObjekttypWohnung
- Adresse8510 Stainz
- Wohnfläche ca.70,60 m²
- Nutzfläche ca.70,60 m²
- Zimmer3
- Wohn-Schlafzimmer2
- Badezimmer1
- Separate WC1
- Balkone1
- Stellplätze gesamt1
- MieterprovisionNein
- KautionEinmaliger Finanzierungsbeitrag von ca. 2.590,43 (bei Variante Miete)
- Warmmiete897,00 EUR
Ausstattung / Merkmale
- ✓ Balkon
- ✓ Separates WC
Objektbeschreibung
Beschreibung
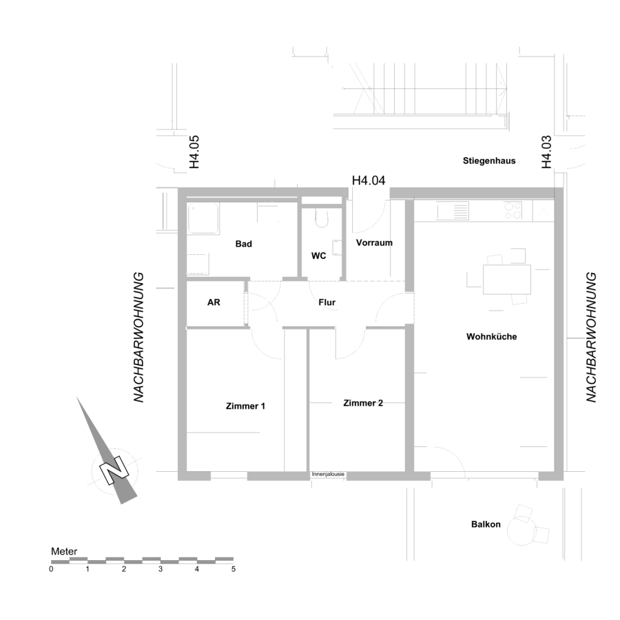
Unsere Genossenschaft errichtet in Stainz eine, mit PV-Anlage ausgestattete, Wohnhausanlage bestehend aus 34 Wohnungen. Bei diesem Objekt handelt es sich bereits um den zweiten Bauabschnitt. Die Wohnung Nr. 4/ Haus 4 befindet sich im 1. Obergeschoss und verfügt über einen überdachten Balkon und kann auf Wunsch mit einer Küche ausgestattet werden. Ebenfalls ist der Wohnung ein Autoeinstellplatz in der Tiefgarage zugeordnet – die Kosten hierfür sind im Preis bereits inkludiert.
Die Hausübergabe ist für Sommer 2027 geplant.
Diese Wohnung wird optional mit Kaufoption angeboten.
Bei Interesse steht Ihnen unsere Wohnungsberaterin Frau Daniela Hell (03614/2445–980) gerne zur Verfügung!
Sonstiges
Wohnung
Lage
8510 Stainz, Österreich (auf Google Maps ansehen)




