Geräumige Mietwohnung mit Balkon in St. Stefan im Rosental
8083 St. Stefan im Rosental, Wohnung zur Miete
Kontaktdaten
- NameFrau Jana Berger
- FirmaSiedlungsgenossenschaft Rottenmann
- Telefon
Objektdaten
- Objekt-ID46071
- ObjekttypWohnung
- Adresse8083 St. Stefan im Rosental
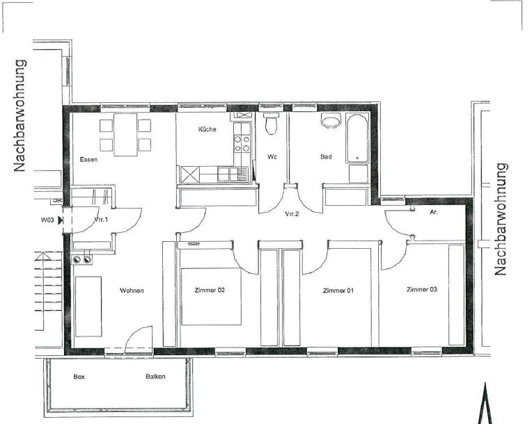
- Wohnfläche ca.85,87 m²
- Nutzfläche ca.85,87 m²
- Wohn-Schlafzimmer5
- Badezimmer1
- Separate WC1
- Balkone1
- Heizwärmebedarf (HWB)79,70 kWh/(m²·a) (Klasse C)
- Gesamtenergieeffizienz-Faktor (fGEE)1,03 (Klasse C)
- Stellplätze gesamt1
- MieterprovisionNein
- KautionEinmaliger Finanzierungsbeitrag in Höhe von ca. € 7.002,91
- Warmmiete686,76 EUR
Ausstattung / Merkmale
- ✓ Balkon
- ✓ Separates WC
Energieausweis
Objektbeschreibung
Beschreibung
Unsere Genossenschaft vermietet in St. Stefan im Rosental in der Feldbacherstraße 46b die geförderte Mietwohnung Nr. 3 inkl. überdachtem Autoabstellplatz und Balkon. Die Kosten für den Autoabstellplatz sind im Preis bereits inkludiert ebenso die Heiz- Betriebs- u. Verwaltungskostenvorauszahlung. Das Gebäude ist mit einer PV-Anlage ausgestattet. Bei Interesse stehen wir gerne zur Verfügung.
Sonstiges
Wohnung
Lage
8083 St. Stefan im Rosental, Österreich (auf Google Maps ansehen)




