Sonnige Gartenwohnung in Obdach frei
8742 Obdach, Wohnung zur Miete
Kontaktdaten
- NameFrau Jana Schleifer
- FirmaSiedlungsgenossenschaft Rottenmann
- Telefon
Objektdaten
- Objekt-ID5116
- ObjekttypWohnung
- Adresse8742 Obdach
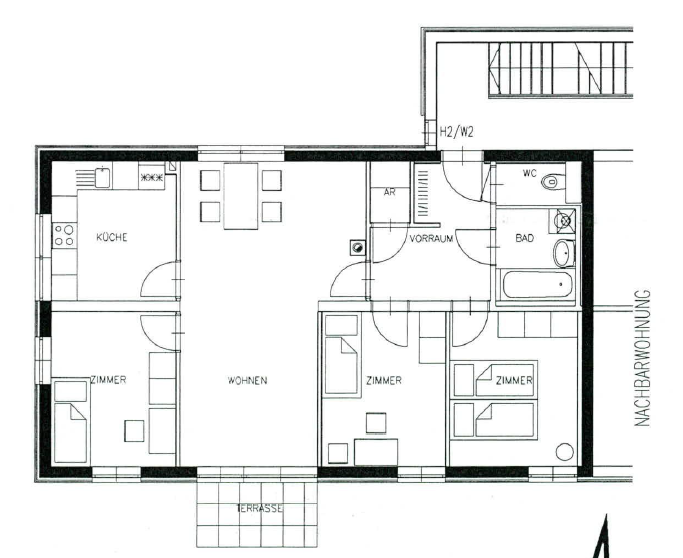
- Wohnfläche ca.79,12 m²
- Nutzfläche ca.79,12 m²
- Wohn-Schlafzimmer4
- Badezimmer1
- Separate WC1
- Terrassen1
- MieterprovisionNein
- KautionFinanzierungsbeitrag € 2.000,00
- Warmmiete884,26 EUR
Ausstattung / Merkmale
- ✓ Separates WC
- ✓ Terrasse
Objektbeschreibung
Beschreibung
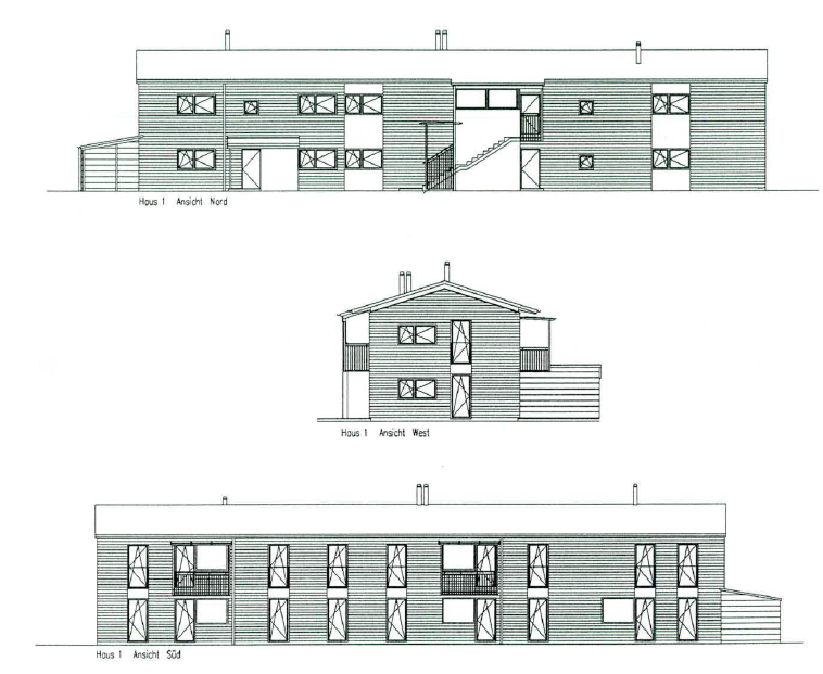
Unsere Genossenschaft vermietet in Obdach, Zeiner Platz 10 die geförderte Mietwohnung Nr. 2 inkl. Autoabstellplatz im Freien. Die Kosten für den Autoabstellplatz sind im Preis bereits inkludiert, ebenso die Heiz- Betriebs- u. Verwaltungskostenvorauszahlung. Die Wohnung befindet sich im Erdgeschoß und verfügt über eine Terrasse, sowie einen großzügigen Garten.
Bei Interesse steht Ihnen Jana Schleifer gerne zur Verfügung!
Sonstiges
Wohnung + AP im Freien
Lage
8742 Obdach, Österreich (auf Google Maps ansehen)



