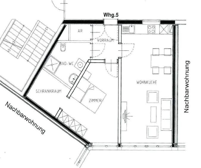
Mietwohnung im Seniorenwohnhaus
8665 Langenwang, Wohnung zur Miete
Kontaktdaten

- NameFrau Claudia Gruber
- FirmaSiedlungsgenossenschaft Rottenmann
- Telefon
Objektdaten
- Objekt-ID57507
- ObjekttypWohnung
- Adresse8665 Langenwang
- Wohnfläche ca.57,21 m²
- Nutzfläche ca.57,21 m²
- Zimmer2
- Wohn-Schlafzimmer1
- Badezimmer1
- Heizwärmebedarf (HWB)31,40 kWh/(m²·a) (Klasse B)
- Gesamtenergieeffizienz-Faktor (fGEE)0,78 (Klasse A)
- MieterprovisionNein
- KautionKaution in Höhe von € 2.454,00
- Warmmiete817,92 EUR
Energieausweis
Objektbeschreibung
Beschreibung
Unsere Genossenschaft vermietet in der Gemeinde Langenwang, Rosenweg 5 die Mietwohnung im Seniorenwohnhaus Nr. 5, diese befindet sich im 1. Obergeschoss. Ebenfalls ist der Wohnung ein überdachter Autoeinstellplatz zugeteilt – die Kosten hierfür sind im Preis bereits inkludiert. Gerne steht Ihnen unsere Wohnungsberaterin Frau Claudia Gruber (03614/2445–978) für Details zur Verfügung!
Sonstiges
Wohnung
Lage
8665 Langenwang, Österreich (auf Google Maps ansehen)



