Geförderte Mietwohnung zum sofortigen Bezug
8670 Krieglach, Wohnung zur Miete
Kontaktdaten

- NameFrau Claudia Gruber
- FirmaSiedlungsgenossenschaft Rottenmann
- Telefon
Objektdaten
- Objekt-ID56087
- ObjekttypWohnung
- Adresse8670 Krieglach
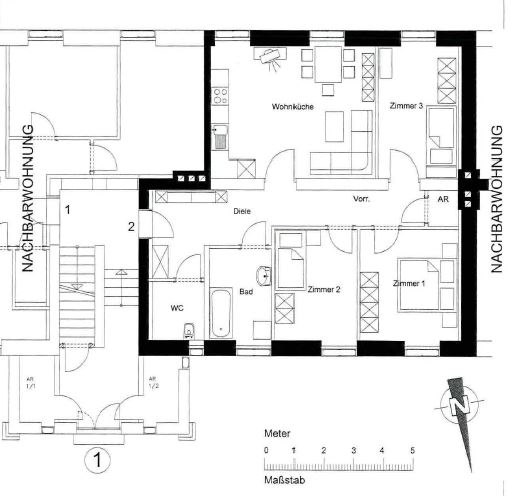
- Wohnfläche ca.85,33 m²
- Nutzfläche ca.85,33 m²
- Wohn-Schlafzimmer3
- Badezimmer1
- Separate WC1
- Heizwärmebedarf (HWB)174,70 kWh/(m²·a) (Klasse E)
- Gesamtenergieeffizienz-Faktor (fGEE)1,74 (Klasse C)
- Stellplätze gesamt1
- MieterprovisionNein
- KautionEinmaliger Finanzierungsbeitrag in Höhe von ca. € 1.446,00
- Warmmiete873,54 EUR
Ausstattung / Merkmale
- ✓ Separates WC
Energieausweis
Objektbeschreibung
Beschreibung
Unsere Genossenschaft vermietet in Krieglach in der Rittisstraße 3a, die geförderte Mietwohnung Nr. 2. Diese befindet sich im Erdgeschoss. Ebenfalls ist dier Wohnung ein überdachter Autoabstellplatz zugetielt – die Kosten hierfür sind im Preis bereits inkludiert.
Sonstiges
Wohnung
Lage
8670 Krieglach, Österreich (auf Google Maps ansehen)











