Charmante Mietwohnung mit Tiefgaragenparkplatz in Judenburg frei!
8750 Judenburg, Wohnung zur Miete
Kontaktdaten
- NameFrau Jana Schleifer
- FirmaSiedlungsgenossenschaft Rottenmann
- Telefon
Objektdaten
- Objekt-ID38064
- ObjekttypWohnung
- Adresse8750 Judenburg
- Wohnfläche ca.69,99 m²
- Nutzfläche ca.69,99 m²
- Wohn-Schlafzimmer2
- Badezimmer1
- Separate WC1
- Balkone1
- Heizwärmebedarf (HWB)82,50 kWh/(m²·a) (Klasse C)
- Gesamtenergieeffizienz-Faktor (fGEE)1,16 (Klasse C)
- Stellplätze gesamt1
- MieterprovisionNein
- KautionFinanzierungsbeitra € 5.845,59
- Warmmiete871,01 EUR
Ausstattung / Merkmale
- ✓ Balkon
- ✓ Separates WC
Energieausweis
Objektbeschreibung
Beschreibung
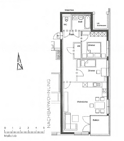
Unsere Genossenschaft vermietet in Judenburg, Alban-Berg-Gasse 3, die geförderte Mietwohnung Nr. 6 inkl. Autoeinstellplatz in der Tiefgarage. Die Kosten für den Autoabstellplatz sind im Preis bereits inkludiert, ebenso die Heiz- Betriebs- u. Verwaltungskostenvorauszahlung. Die Wohnung befindet sich im 2 OG und verfügt über einen Balkon. Das Wohnhaus ist mit einer PV-Anlage ausgestattet.
Bei Interesse stehen wir Ihnen gerne zur Verfügung.
Sonstiges
Wohnung
Lage
8750 Judenburg, Österreich (auf Google Maps ansehen)



