Gemütliche 1-Zimmer Wohnung mit Garten in Jagerberg
8091 Jagerberg, Wohnung zur Miete
Kontaktdaten

- NameFrau Claudia Gruber
- FirmaSiedlungsgenossenschaft Rottenmann
- Telefon
Objektdaten
- Objekt-ID53560
- ObjekttypWohnung
- Adresse8091 Jagerberg
- Wohnfläche ca.53,06 m²
- Nutzfläche ca.53,06 m²
- Wohn-Schlafzimmer2
- Badezimmer1
- Separate WC1
- Terrassen1
- Heizwärmebedarf (HWB)32,10 kWh/(m²·a) (Klasse B)
- Gesamtenergieeffizienz-Faktor (fGEE)0,68 (Klasse A+)
- MieterprovisionNein
- KautionEinmaliger Finanzierunsgbeitrag in Höhe von € 7.869,00
- Warmmiete606,31 EUR
Ausstattung / Merkmale
- ✓ Separates WC
- ✓ Terrasse
Energieausweis
Objektbeschreibung
Beschreibung
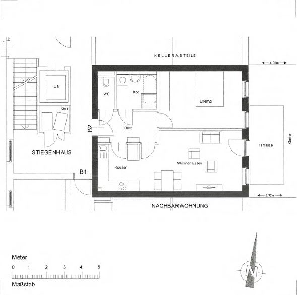
Unsere Genossenschaft vermietet in Jagerberg, HNr. 62 die geförderte Mietwohnung Nr. 2 im Haus B. Diese befindet sich im Erdgeschoss und verfügt über eine Terrasse mit Garten. Ebenfalls ist der Wohnung ein überdachter Autoabstellplatz zugeteilt. Dieser ist genauso wie die Vorauszahlung für Heiz- und Betriebskosten in der monatlichen Vorschreibung bereits enthalten. Das Wohnhaus ist mit einer PV-Anlage ausgestattet.
Gerne steht Ihnen unsere Wohnungsberaterin Frau Claudia Gruberl (03614/2445–978) für Details zur Verfügung!
Sonstiges
Wohnung
Lage
8091 Jagerberg, Österreich (auf Google Maps ansehen)












