ERSTBEZUG – moderne, gefördete Mietwohnung mit Balkon in Floing
8183 Floing, Wohnung zur Miete
Kontaktdaten

- NameFrau Daniela Hell
- FirmaSiedlungsgenossenschaft Rottenmann
- Telefon
Objektdaten
- Objekt-ID90790
- ObjekttypWohnung
- Adresse8183 Floing
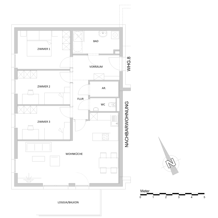
- Wohnfläche ca.93,63 m²
- Nutzfläche ca.93,63 m²
- Zimmer4
- Wohn-Schlafzimmer3
- Badezimmer1
- Separate WC1
- Balkone1
- Heizwärmebedarf (HWB)36,00 kWh/(m²·a) (Klasse B)
- Gesamtenergieeffizienz-Faktor (fGEE)0,60 (Klasse A+)
- MieterprovisionNein
- KautionEinmaliger Finanzierungsbeitrag in Höhe von € 3.087,00 (bei Variante Miete)
- Warmmiete1.035,00 EUR
Ausstattung / Merkmale
- ✓ Balkon
- ✓ Separates WC
Energieausweis
Objektbeschreibung
Beschreibung
Unsere Genossenschaft errichtet in Floing ein, mit PV-Anlage ausgestattetes, Wohnhaus bestehend aus acht geförderten Wohnungen. Die Wohnung Nr. 8 befindet sich im 1. OG und verfügt über einen überdachten Balkon und kann auf Wunsch mit einer Küche ausgestattet werden. Ebenfalls ist der Wohnung ein überdachter Autoabstellplatz zugeordnet – die Kosten hierfür sind im Preis bereits inkludiert.
Die Hausübergabe ist für Winter 2026 geplant.
Diese Wohnung wird optional mit Kaufoption angeboten.
Bei Interesse steht Ihnen unsere Wohnungsberaterin Frau Daniela Hell (03614/2445–980) gerne zur Verfügung!
Sonstiges
Wohnung
Lage
8183 Floing, Österreich (auf Google Maps ansehen)









