ERSTBEZUG – moderne, gefördete Mietwohnung in Floing
8183 Floing, Wohnung zur Miete
Kontaktdaten

- NameFrau Daniela Hell
- FirmaSiedlungsgenossenschaft Rottenmann
- Telefon
Objektdaten
- Objekt-ID90776
- ObjekttypWohnung
- Adresse8183 Floing
- Wohnfläche ca.72,38 m²
- Nutzfläche ca.72,38 m²
- Zimmer3
- Wohn-Schlafzimmer2
- Badezimmer1
- Separate WC1
- Terrassen1
- Heizwärmebedarf (HWB)36,00 kWh/(m²·a) (Klasse B)
- Gesamtenergieeffizienz-Faktor (fGEE)0,60 (Klasse A+)
- MieterprovisionNein
- KautionEinmaliger Finanzierungsbeitrag (bei Variante Miete) von ca. € 2.602,00
- Warmmiete887,00 EUR
Ausstattung / Merkmale
- ✓ Separates WC
- ✓ Terrasse
Energieausweis
Objektbeschreibung
Beschreibung
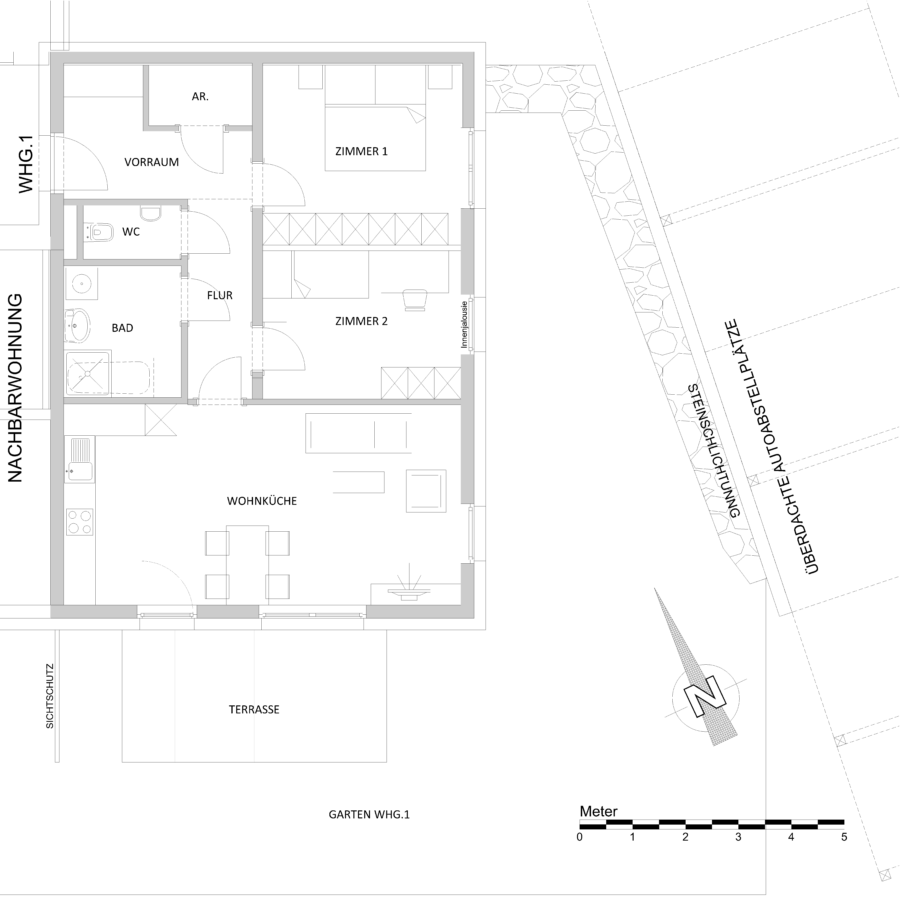
Unsere Genossenschaft errichtet in Floing ein, mit PV-Anlage ausgestattetes, Wohnhaus bestehend aus acht geförderten Wohnungen. Die Wohnung Nr. 1 befindet sich im Erdgeschoss und verfügt über einen eigenen Garten und kann auf Wunsch mit einer Küche ausgestattet werden. Ebenfalls ist der Wohnung ein überdachter Autoabstellplatz zugeordnet – die Kosten hierfür sind im Preis bereits inkludiert.
Die Hausübergabe ist für Winter 2026 geplant.
Diese Wohnung wird optional mit Kaufoption angeboten.
Bei Interesse steht Ihnen unsere Wohnungsberaterin Frau Daniela Hell (03614/2445–980) gerne zur Verfügung!
Sonstiges
Wohnung
Lage
8183 Floing, Österreich (auf Google Maps ansehen)





