Sonnige 3-Zimmer Wohnung mit Balkon in Edelschrott
8583 Edelschrott, Wohnung zur Miete
Kontaktdaten
- NameFrau Jana Schleifer
- FirmaSiedlungsgenossenschaft Rottenmann
- Telefon
Objektdaten
- Objekt-ID41133
- ObjekttypWohnung
- Adresse8583 Edelschrott
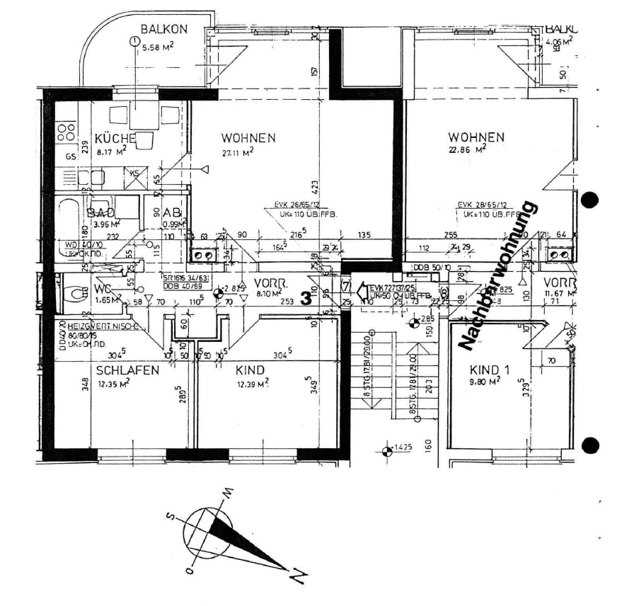
- Wohnfläche ca.91,30 m²
- Nutzfläche ca.91,30 m²
- Heizwärmebedarf (HWB)84,80 kWh/(m²·a) (Klasse C)
- Gesamtenergieeffizienz-Faktor (fGEE)1,25 (Klasse C)
- MieterprovisionNein
- KautionFinanzierungsbeitrag € 2.000,00
- Warmmiete926,58 EUR
Energieausweis
Objektbeschreibung
Beschreibung
Unsere Genossenschaft vermietet in Edelschrott, Seestraße 159, die geförderte Mietwohnung Nr. 3 inkl. Autoabstellplatz im Freien. Die Kosten für den Autoabstellplatz sind im Preis bereits inkludiert, ebenso die Heiz- Betriebs- u. Verwaltungskostenvorauszahlung. Die Wohnung befindet sich im Obergeschoss und verfügt über einen Balkon. Das Wohnhaus ist mit einer PV-Anlage ausgestattet.
Bei Interesse stehen wir Ihnen gerne zur Verfügung.
Sonstiges
Wohnung + AP im Freien
Lage
8583 Edelschrott, Österreich (auf Google Maps ansehen)



























