Sonnige 2-Zimmer-Wohnung in Traboch mit Balkon, Landesstraße 15a
8772 Traboch, Wohnung zur Miete
Kontaktdaten
- NameFrau Jana Schleifer
- FirmaSiedlungsgenossenschaft Rottenmann
- Telefon
Objektdaten
- Objekt-ID51793
- ObjekttypWohnung
- Adresse8772 Traboch
- Wohnfläche ca.47,07 m²
- Nutzfläche ca.47,07 m²
- Wohn-Schlafzimmer2
- Badezimmer1
- Balkone1
- Heizwärmebedarf (HWB)53,14 kWh/(m²·a) (Klasse C)
- Gesamtenergieeffizienz-Faktor (fGEE)0,90 (Klasse B)
- MieterprovisionNein
- KautionKaution ca. € 1.888,00
- Warmmiete629,28 EUR
Ausstattung / Merkmale
- ✓ Balkon
Energieausweis
Objektbeschreibung
Beschreibung
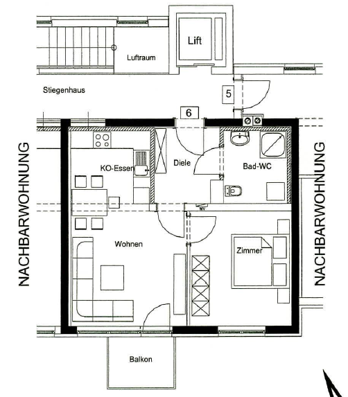
Unsere Genossenschaft vermietet in Traboch, in der Landesstraße 15a, die geförderte Mietwohnung Nr.6.
Im Preis sind die Heiz- Betriebs- u. Verwaltungskostenvorauszahlung enthalten. Die Wohnung verfügt über einen Balkon. Das Wohnhaus ist mit einer PV-Anlage ausgestattet.
Bei Interesse stehen wir Ihnen gerne zur Verfügung.
Sonstiges
Wohnung
Lage
8772 Traboch, Österreich (auf Google Maps ansehen)


