Sonnige 3 Zimmerwohnung in Niklasdorf mit Carport frei!
8712 Niklasdorf, Wohnung zur Miete
Kontaktdaten
- NameFrau Jana Schleifer
- FirmaSiedlungsgenossenschaft Rottenmann
- Telefon
Objektdaten
- Objekt-ID41162
- ObjekttypWohnung
- Adresse8712 Niklasdorf
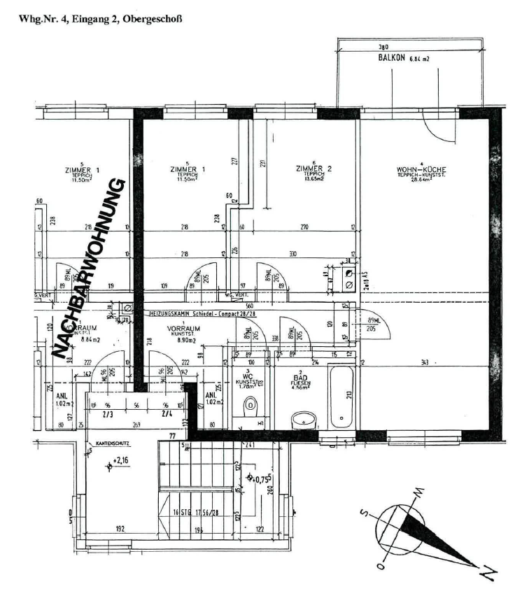
- Wohnfläche ca.70,05 m²
- Nutzfläche ca.70,05 m²
- Wohn-Schlafzimmer2
- Badezimmer1
- Separate WC1
- Balkone1
- MieterprovisionNein
- KautionFinanzierungsbeitrag € 2.000,00
- Warmmiete790,87 EUR
Ausstattung / Merkmale
- ✓ Balkon
- ✓ Separates WC
Objektbeschreibung
Beschreibung
Unsere Genossenschaft vermietet in 8712 Niklasdorf, Depotstraße 61 b die geförderte Mietwohnung Nr. 4 inkl. überdachtem Autoabstellplatz. Die Kosten für den Autoabstellplatz sind im Preis bereits inkludiert, ebenso die Heiz- Betriebs- u. Verwaltungskostenvorauszahlung. Die Wohnung befindet sich im Obergeschoss und verfügt über einen Balkon.
Bei Interesse steht Ihnen Frau Jana Schleifer unter 03614 2445 902 jederzeit und gerne zur Verfügung!
Sonstiges
Wohnung + AP überdacht
Lage
8712 Niklasdorf, Österreich (auf Google Maps ansehen)







