Familiengerechte 3-Zimmerwohnung mit Tiefgaragenplatz in Murau
8850 Murau, Wohnung zur Miete
Kontaktdaten
- NameFrau Eva Quenz
- FirmaSiedlungsgenossenschaft Rottenmann
- Telefon
Objektdaten
- Objekt-ID39715
- ObjekttypWohnung
- Adresse8850 Murau
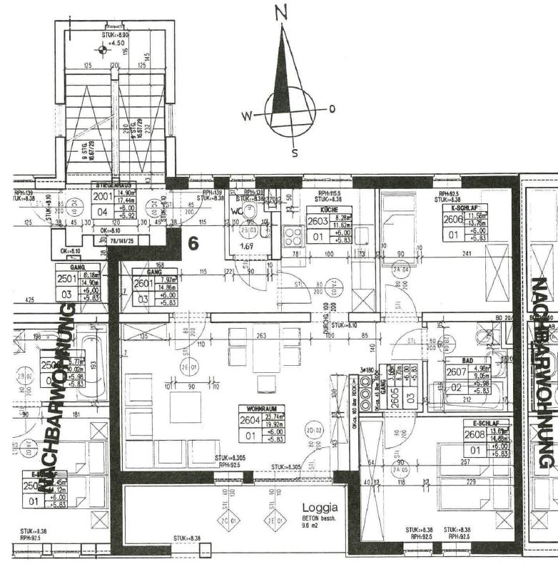
- Wohnfläche ca.85,92 m²
- Nutzfläche ca.85,92 m²
- Wohn-Schlafzimmer3
- Badezimmer1
- Separate WC1
- Loggien1
- Heizwärmebedarf (HWB)58,30 kWh/(m²·a) (Klasse C)
- Gesamtenergieeffizienz-Faktor (fGEE)0,86 (Klasse B)
- Stellplätze gesamt1
- MieterprovisionNein
- KautionFinanzierungsbeitrag € 2.000,-
- Warmmiete915,16 EUR
Ausstattung / Merkmale
- ✓ Loggia
- ✓ Separates WC
Energieausweis
Objektbeschreibung
Beschreibung
Unsere Genossenschaft vermietet in Murau, Karl-Brunner-Siedlung 7a die geförderte Mietwohnung Nr. 6 inkl. Autoeinstellplatz in der Tiefgarage und Kellerabteil. Die Kosten für den Autoabstellplatz sind im Preis bereits inkludiert, ebenso die Heiz- Betriebs- u. Verwaltungskostenvorauszahlung. Die Wohnung befindet sich im 2. Obergeschoß und verfügt über eine Loggia. Bei Interesse stehen wir Ihnen gerne zur Verfügung.
Sonstiges
Wohnung + TG
Lage
8850 Murau, Österreich (auf Google Maps ansehen)




