nette 3-Zimmer Wohnung mit Balkon – Froschaugasse
8010 Graz, Wohnung zur Miete
Kontaktdaten

- NameFrau Natalie Völkl
- FirmaSiedlungsgenossenschaft Rottenmann
- Telefon
Objektdaten
- Objekt-ID26691
- ObjekttypWohnung
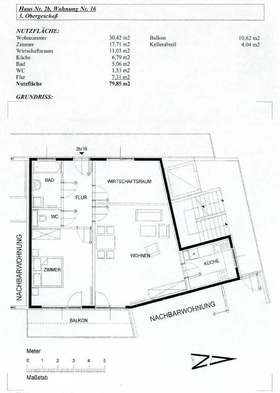
- Adresse8010 Graz
- Wohnfläche ca.80,01 m²
- Nutzfläche ca.80,01 m²
- Zimmer3
- Wohn-Schlafzimmer2
- Badezimmer1
- Separate WC1
- Balkone1
- Heizwärmebedarf (HWB)51,23 kWh/(m²·a) (Klasse C)
- Gesamtenergieeffizienz-Faktor (fGEE)1,04 (Klasse C)
- Stellplätze gesamt1
- MieterprovisionNein
- Kautionca. € 3.140,00 (Kaution)
- Warmmiete1.050,00 EUR
Ausstattung / Merkmale
- ✓ Balkon
- ✓ Separates WC
Energieausweis
Objektbeschreibung
Beschreibung
Wir haben diese nette 3-Zimmer Wohnung mit großem Balkon in der Froschaugasse 2b (Bezirk Jakomini) zu vermieten. Das Objekt verfügt über einen Lift, sodass man die Wohnung im 3. Obergeschoß ganz bequem erreicht. Weiters gehört ein Autoeinstellplatz in der Tiefgarage dazu. Und das Beste? Die Kosten dafür sowie auch die Heizkosten sind im Preis bereits inkludiert. Also schnell melden! Weiters ist das Wohnhaus noch mit einer PV-Anlage ausgestattet.
Sonstiges
Wohnung
Lage
8010 Graz, Österreich (auf Google Maps ansehen)



