Geförderte Mietwohnung mit Kaufoption
8073 Feldkirchen bei Graz, Wohnung zur Miete
Kontaktdaten

- NameFrau Claudia Gruber
- FirmaSiedlungsgenossenschaft Rottenmann
- Telefon
Objektdaten
- Objekt-ID58032
- ObjekttypWohnung
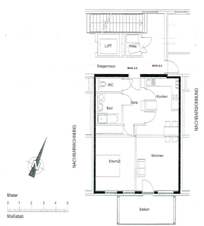
- Adresse8073 Feldkirchen bei Graz
- Wohnfläche ca.54,14 m²
- Nutzfläche ca.54,14 m²
- Zimmer2
- Wohn-Schlafzimmer2
- Badezimmer1
- Separate WC1
- Balkone1
- MieterprovisionNein
- KautionEinmaliger Finanzierungsbetrag in Höhe von ca. € 10.300,00
- Warmmiete640,83 EUR
Ausstattung / Merkmale
- ✓ Balkon
- ✓ Separates WC
Objektbeschreibung
Beschreibung
Unsere Genossenschaft vermietet in Feldkirchen bei Graz in der Hafnerstraße 12a, die geförderte Mietwohnung Nr. 8. Diese befindet sich im 2. Obergeschoss und verfügt über einen ca. 9 m² großen Balkon. Ebenfalls ist der Wohnung ein überdachter Autoeinstellplatz zugeteilt – die Kosten hierfür sind im Preis bereits inkludiert. Gerne steht Ihnen unsere Wohnungsberaterin Frau Claudia Gruber (03614/2445–978) für Details zur Verfügung!
Sonstiges
Wohnung
Lage
8073 Feldkirchen bei Graz, Österreich (auf Google Maps ansehen)









