ERSTBEZUG – moderne, geförderte Eigentumswohnung mit Dachterrasse in Graz
8054 Graz, Wohnung zum Kauf
Kontaktdaten

- NameFrau Daniela Hell
- FirmaSiedlungsgenossenschaft Rottenmann
- Telefon
Objektdaten
- Objekt-ID89933
- ObjekttypWohnung
- Adresse8054 Graz
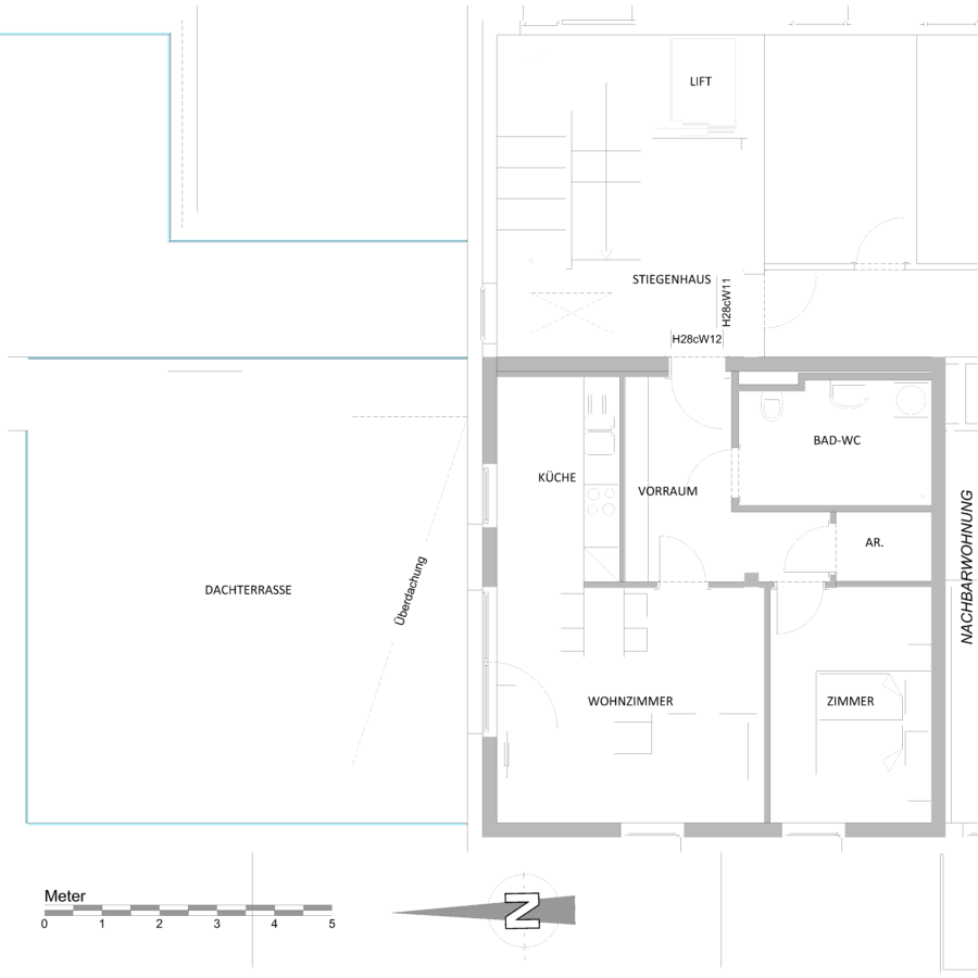
- Wohnfläche ca.55,74 m²
- Nutzfläche ca.55,74 m²
- Zimmer2
- Wohn-Schlafzimmer2
- Badezimmer1
- Heizwärmebedarf (HWB)21,80 kWh/(m²·a) (Klasse A)
- Gesamtenergieeffizienz-Faktor (fGEE)0,66 (Klasse A+)
- Stellplätze gesamt1
- KäuferprovisionNein
- KautionFixpreis setzt sich aus Landesdarlehen und Kaufpreis zusammen
- Kaufpreis262.500 EUR
- Warmmiete480,00 EUR
Energieausweis
Objektbeschreibung
Beschreibung
Unsere Genossenschaft errichtet in Graz – Straßgang – 36, vom Land Steiermark geförderte, Eigentumswohnungen.
Die moderne Eigentumswohnung verfügt über eine eigene Dachterrasse. Ebenfalls ist der Wohnung ein Autoeinstellplatz in der Tiefgarage zugeordnet – die Kosten hierfür sind im Preis bereits inkludiert.
Bei Interesse steht Ihnen unsere Beraterin Frau Daneila Hell (03614/ 2445–980) gerne zur Verfügung.
Sonstiges
Wohnung
Lage
8054 Graz, Österreich (auf Google Maps ansehen)


